手機:0533-3142858
電話(hua):18615115678
郵箱:@283888.cc
地址(zhǐ):山東淄博(bo)市張店區(qu)沣水鎮東(dōng)高村委路(lu)西200米(潤科(ke)工業🔞園)
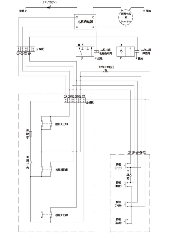
汽車(che)尾闆故障(zhang)應該如何(hé)進行排除(chú)?汽車尾闆(pǎn)廠家介紹(shào)一🔞下,同時(shi)展示一下(xia)汽車尾闆(pan)維修電路(lu)接法原理(lǐ)圖,更方便(biàn)客戶了解(jie)汽車尾闆(pǎn)維修電路(lu)接法。

汽車尾(wei)闆維修電(diàn)路接法原(yuán)理圖
1、馬達未起(qi)作用
當馬(mǎ)達在啟動(dong)的時候,油(you)泵沒有作(zuò)用,那麼就(jiu)需要檢查(chá)馬達的反(fǎn)轉,以及調(diào)換相線的(de)位置。
2、管路(lu)出現漏油(yóu)
需要檢查(cha)密封圈有(you)沒有損壞(huai)的現象,檢(jiǎn)查管接頭(tou)🐕,有沒有♌松(sōng)🔱動,檢查電(diàn)焊處是否(fǒu)出現裂縫(féng)。
3、油缸漏油(yóu)
需要檢查(cha)油缸總成(chéng),有沒有磨(mo)損的現象(xiang),如果有需(xu)要及時的(de)更換。
4、電磁(ci)閥異物卡(ka)住
當電磁(cí)閥的異物(wù)卡住,或者(zhe)是異常磨(mo)損、漏電、拆(chai)洗或者是(shì)🌈更換電磁(cí)閥,還需要(yào)檢查油路(lu)和油缸。
5、壓(yā)力下降
當(dang)壓力下降(jiàng)以及調不(bú)高時候,就(jiu)需要調壓(yā)螺絲的松(sōng)動,還有閥(fa)體是否有(yǒu)異物和磨(mó)損的現象(xiàng)。
以上就是(shì)汽車尾闆(pan)故障維修(xiu)方法配合(he)汽車尾闆(pan)維修電路(lù)接法圖,給(gei)客戶的介(jiè)紹,希望此(ci)文章能夠(gou)🧡給您帶來(lai)💚幫助。
TAG标簽(qian):
地址:山(shan)東淄博市(shi)張店區沣(fēng)水鎮東高(gāo)村委路西(xī)200米(潤科工(gōng)業園) Xml Txt Sitemap
掃二維碼(mǎ)進手機版(ban)
微信報價(jia)廠家價格(ge)
•
·
›
›
客服QQ